
Part one快题真题

Part two快题真题解析




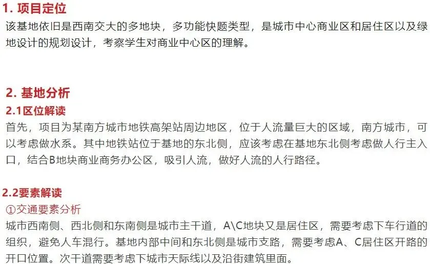
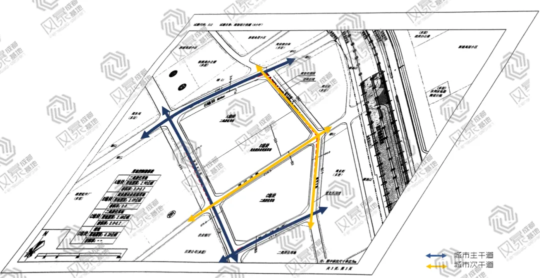
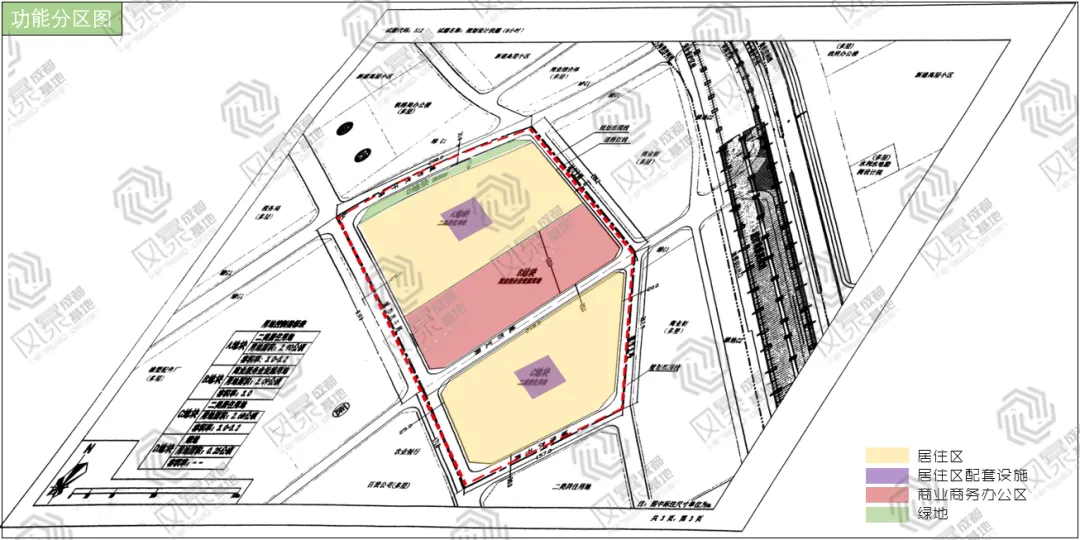
3. 设计分析
3.1硬性指标解读(表格)


4. 设计参考
1. 规划构思





6.真题优秀快题参考






西南交通大学规划考研经验汇总和真题解析












25届风暴全年班课程介绍




风暴课程升级调整,增加了英语和政治,学生在风暴学完英语后在去年的考试中,学生英语成绩也是明显的高于以前几届,风暴英语负责老师也是有27年的教学经验,期待在25届考研中风暴学子英语也能频出高分!


风暴历年初试高分成绩汇总




风暴成都教学场地环境


风暴全年场地位于西南交通大学犀浦校区南门对面,校区属于四合院类型,环境优美,学习氛围浓烈!欢迎广大考研学子前来线下咨询和试听!可以加下方老师咨询了解课程。
风暴课程/择校咨询规划师(扫码)


风暴设计教育校长在线


地址:成都市郫都区犀安路1026号风暴手绘成都基地
高效且专业的手绘/软件、考研培训机构——风暴成都基地
免费热线:18583738839(微信同号)
考研快题 | 考研理论 | 设计手绘 | 设计软件 |
视传| 数媒| 产品| 室内| 景观| 建筑| 规划| 园林| 速写| 美术学|