深耕八年,没人比我们更懂快题!【2026浙农林考研真题解析】
改革后的浙农林出题较为保守,
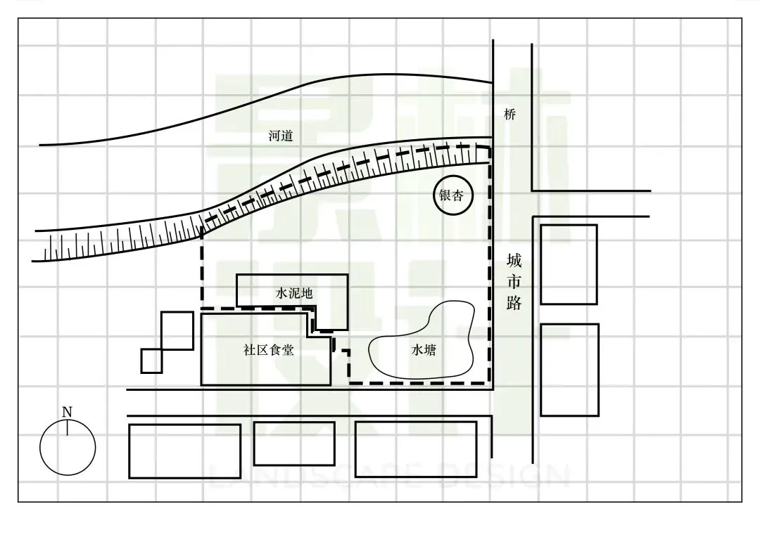
考题是一个社区开放空间设计
真题场地
【01考点分析】
①场地要素的梳理与组织
场地虽小,但需处理的要素不少:原有保留树(银杏)、水塘、滨水空间等,学长在画范图的时候以银杏为设计重点展开,使其成为联系了滨水带状空间和社区食堂的重要锚点。
②人性化设计:无障碍
据同学回忆题目特地提到了社区中老年人群的使用和无障碍的要求,场地高差集中于滨水一侧,近1.5m设计在滨水处打造无障碍坡道结合滨水消落带的处理形成了河道的韧性景观
③灵活多样的场地使用
场地面积较小,但是却是社区生活的重要组成部分设计充分考虑活动的弹性设置中心草坪可举办小型节庆活动与日常游憩需求
【02交通流线】
交通流线布局图小场地面积较小,可以不需要详细的一二级分路,但是也要满足场地的通行功能,通过硬质铺装,滨水步道,台阶等丰富通行功能。
【03节点设计】
古树承载着社区居民的共同记忆,也是这片土地最生动的景观印记。在古树的荫蔽下,我们构想营造一方开阔的社区广场,为居民日常聊天、广场舞、下棋等休闲活动提供一处自然、亲切的共享场所。这里将成为连接人与人、过去与当下的活力空间。
滨水步道通过构建多层次、立体化的步行系统,将水岸空间编织成一个充满活力的社区生活纽带。它打破了单一的路径模式,在不同高差与临水距离中营造移步换景的亲水体验,既满足人们漫步、观景、休憩等多元的亲水需求,也激发更多社区活动的自然发生。
社区活力草坪,作为一处开放而富有弹性的绿色共享空间,旨在为不同年龄、不同兴趣的居民提供亲近自然、释放身心的多元化场景。这里既可以举办市集、露天观影、社区节庆等公共活动,也适宜家庭亲子嬉戏、草地瑜伽、邻里野餐等日常休闲。
餐厅前广场,作为连接内外、融合功能与氛围的过渡空间,在满足餐厅顾客集散需求的同时,亦成为其室内空间的自然延伸。通过合理布置外摆餐位,为居民提供宜人的户外用餐体验,在树影与微风间享受美食与交谈。

在考研的过程中景林会一路陪伴大家,
祝大家都能考取理想成绩!
加入景林专属考研群,
有更多最新的快题经验分享哦!
扫描下方二维码
Y学长拉你进群哦!
觉得内容不错!点个“赞”和“在看”哦~

