

关注禾图小程序获取更多考研资料


往期真题解析









1
写在前面
HETU DESIGN
26建筑考研初试已结束了几天了,我们加班加点把各校真题做了复原整理,让各位备考东北大学的小伙伴们久等了,今天我们一起来复盘一下东北大学2026初试快题的考察内容吧。
东北大学改革变化
东北大学2025年由六小时A1快题改为4小时A1快题,2026年又变为3小时B4图纸分析类快快题。
相较于以往考试的侧重点有所变化,以前以马克笔上色及套路式背图参加考试的方式不复存在,26年考试更加注重考生的临场应变能力,以及对于考试题目所涉及问题的分析总结能力。要求考生对于空间有更深刻的理解。除了设计方面,由于时间的缩短因此考生应当具备一定的徒手绘图表达能力,才能在考试中占据优势。

东北大学2026初试真题



真题拆解
东北大学26考研题目为:中小型商业建筑设计
场地面积为600平方米长方形地块
建筑面积要求不超过1200平方米
功能要求有400平方米较大的AR体验空间,同时有餐饮及阅览空间。
题目要求有一定的分析图及特色空间的设计。
此建筑功能包括AR空间、咖啡简餐空间、卫生间、办公空间、阅览空间等。
对于此类建筑,由于功能类型较少,很多同学在设计功能的时候不知道如何丰富自己的平面空间,简单的功能排布自然无法很好的满足题目要求。
但是题目中又要求该建筑为两层空间,且层高不超过3.6米,因此在垂直空间的处理中比较受限。
且题目场地面积为600平,要想满足不大于1200平方建筑设计,两层平面几乎要铺满整个场地,因此要想平面划分更多的秩序,就要从门厅空间以及空间变化的细节入手,可以考虑在平面空间中用墙体划分秩序。
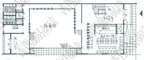
场地现状及空间设计分析图

门厅及咖啡厅阅览空间示意图

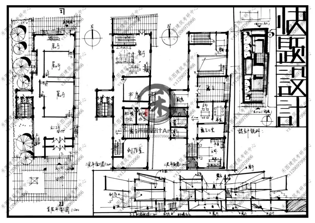
方案一首层平面设计示意图

方案一二层平面空间设计示意图①

方案一二层平面空间设计示意图②
在平面设计中可以加入曲线使空间变化更加灵活,且丰富体验,增强引导性。

方案一造型设计示意图①
用直线构成设计造型(二层方案①)


用曲线构成设计造型(二层方案①)

用曲线构成设计造型(二层方案②)

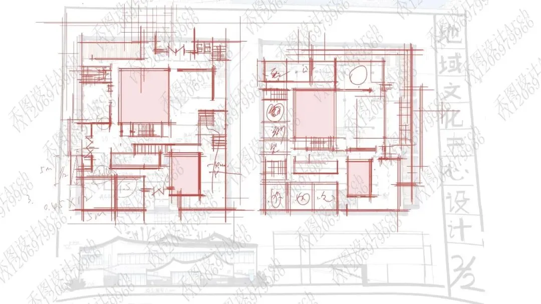
方案二

方案造型设计

剖面透空间设计示意图


相关案例

Gate M西岸梦中心北区

Gate M西岸梦中心的旧址是曾经亚洲最大的有着百年历史的上海水泥厂,它的更新过程也见证着西岸的发展历程,随着西岸片区的逐渐成熟,其最初设定运营方向也发生着相应的变化,由此也带来了规划设计的不断完善与升级。






















26寒假东北大学考研课程安排


往期教学成果

教师课稿展示














































学员图纸改图示范展示






































禾图26寒假集训营课程优惠
禾图26寒假集训营共计15天,针对所有三小时建筑考研院校。
寒假集训课程共计15天
(150课时)
课程原价:2100元
11月10号前报名优惠后
1700元
11月30号前报名优惠后
1800元
12月31号前报名优惠后
1900元
集赞优惠
转发此公众号文章至朋友圈集赞10个或保存链接24小时即可在原优惠基础上再优惠100元
两人团报,每人优惠100元
三人及以上团报,每人优惠300元
优惠可叠加,具体优惠详情请咨询康康学长
(vx:hetusheji1206)
联系我们
7
课程咨询
HETU DESIGN

课程咨询


康康学长
微信号|hetusheji1206
禾图媒体·感谢关注






【禾图·一家致力于干货分享的学习平台】
========================设计教育领航者哔哩哔哩|小红书建筑考研学长禾图建筑手绘沈阳校区禾图设计网络学院
禾图建筑考研理论建筑考研交流qq总群
707715006