
规划 | 建筑 | 风园 | 环艺 | 展示 | 视传 | 工业 | 动画
软件 | 手绘 | 方案 | 竞赛 | 专升本 | 考研 | 留学
▼

更多设计人提升资讯关注【观内外】
2026年广州大学城乡规划快题考试内容再次更改。相较前两年对于土地利用的考察,今年的考试更加侧重对同学们实务的考察。
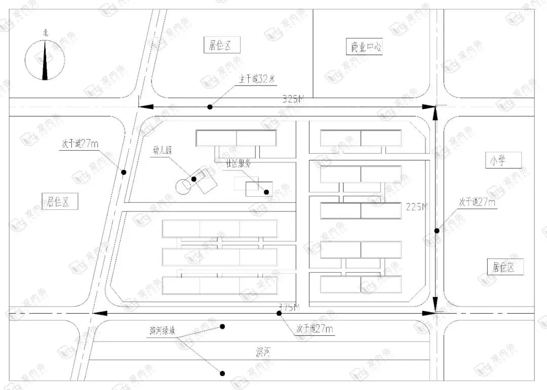
首先第一题实务题就占了四十分,题目要求考生分析指出原始方案(如图1所示)存在的问题,考生们可以从日照间距、开路、核心居住景观、停车等角度进行作答。
第二题则是重新提出方案经济技术指标并分析原因,考生可以从社区舒适度、场地开发强度与配套服务等等方面进行考虑,虽然只占十分,但是也最好分点进行论证,这一点与24、25年的土地功能论证有异曲同工之处。
最后一题则是常见的考察形式,即重新进行规划设计(如图2所示)。整体场地面积约7.8公顷左右,绘制的工作量不容小觑。
(正式还原题目信息将仅用于机构教学,不作公开;如有细节错误,请评论区指出)

1、地块规划地块位于南方某中等滨海城市老城区。
2、总面积约为7.8公顷
3、现状用地主要以6层二类居住用地为主,周边建有一所18班小学
4、场地南侧有一处河道及沿江绿地,北侧现状为商业中心

1、请分析指出原方案(如图1所示)存在哪些问题(40分)
2、请重新提出方案经济技术指标并分析原因(10分)
3、依据上述提出的用地性质及开发控制指标,要求在A3图纸上对设计范围(如图2所示)进行方案设计、说明及表现。成果包含总平面图(1:1000)、设计说明(阐明设计意图与设计要点,字数不限)和分析图等(100分)

图1(考员回忆版)

图2(考员回忆版)

1、用地性质单一化:此次规划场地更加鼓励大家混合商业、文化以及公共绿地更能体现功能复合的规划思维;
2、忽视滨河景观利用:南侧河道是场地规划亮点,设计时不让建筑完全遮挡水景,在留出视线通廊的同时丰富滨水景观的画法;
3、时间安排不合理:实物题应尽快完成,并注意尽量留够充足时间画总平面图。总平图比例 1:1000,建筑轮廓需标注层数,建筑功能要明确。

总的来说此次快题更加综合考察各位考生对各项功能的掌握程度以及短时间内的绘图速度,需要有更加扎实的基本功。今年的题目同样鼓励大家自己定功能。考生在设计场地时需要梳理周边功能,并且推断场地内部需要哪些功能。
下年考试同学们在练习时可多模拟此类地块,重点训练用地性质论证、指标推导和滨水空间设计~需要更多快题案例或指标参考
祝各位考生考试顺利!
观内外2025城乡规划考研成绩概览










