

关注禾图小程序获取更多考研资料


往期真题解析









1
写在前面
HETU DESIGN
26建筑考研初试已结束,各大高校真题会陆续放出,今天我们拿到了中国学子最向往之高校-清华大学的考研真题,接下来我们对清华大学的快题真题做一下相关解析。

清华大学2026初试真题



真题拆解
清华大学26考研题目为:画家艺术沙龙建筑设计
场地面积为1800平方米长方形地块
场地内有保留故居
需要考虑新建建筑与保留建筑之间的联系
功能要求一共有7个部分,多功能厅、画廊展厅、
会客厅、咨询台、咖啡厅休息区、纪念品商店,管理办公,其中展厅设计有5米层高要求。
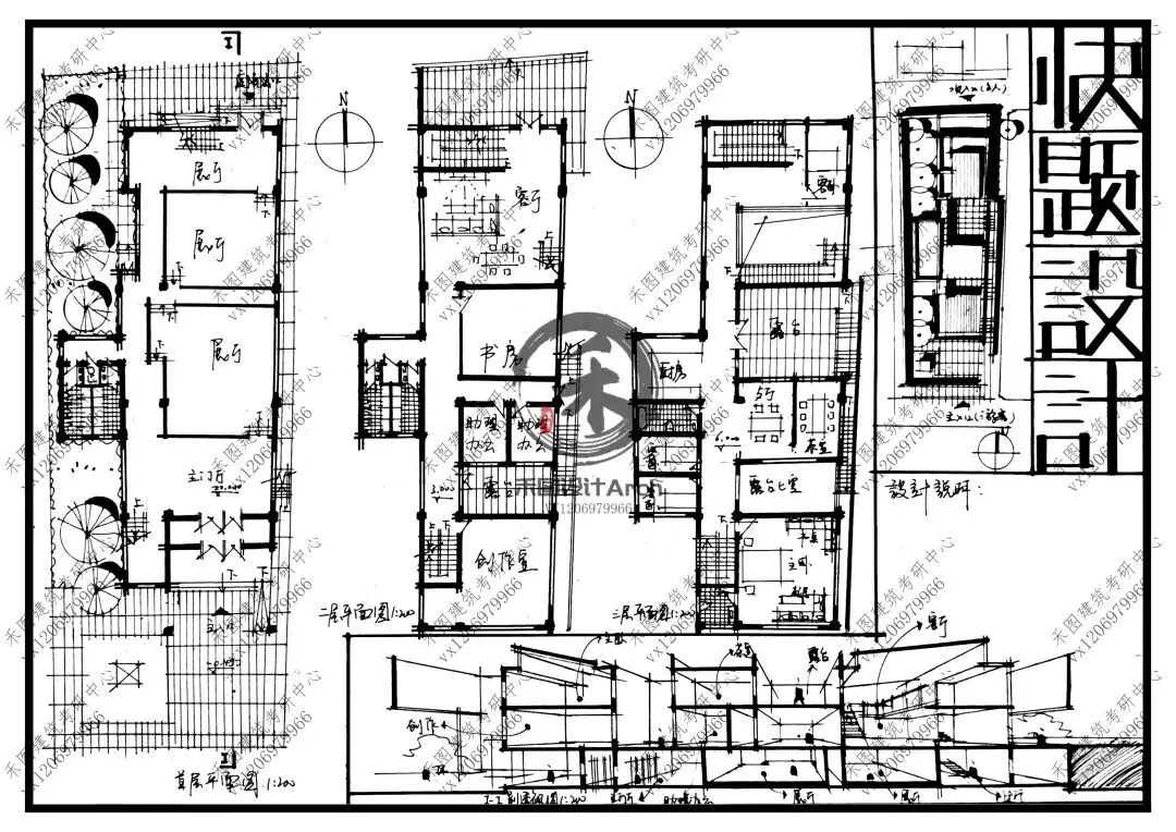
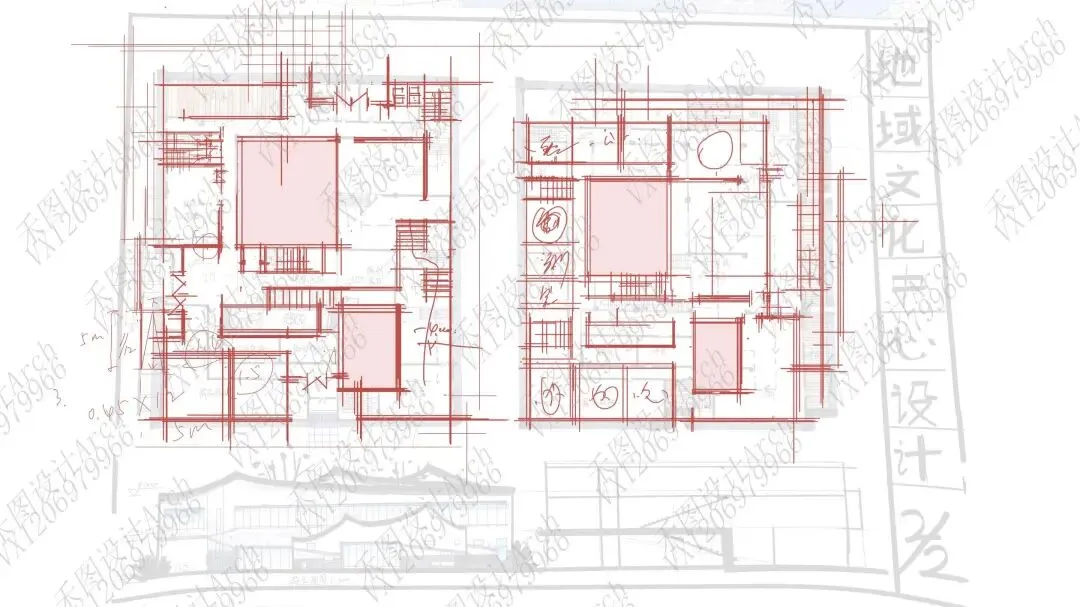
场地现状及空间设计分析图

首层平面示意图

屋顶平面示意图

总平面与空间节点设计示意图

造型设计示意图

立面、剖面设计示意图


相关案例

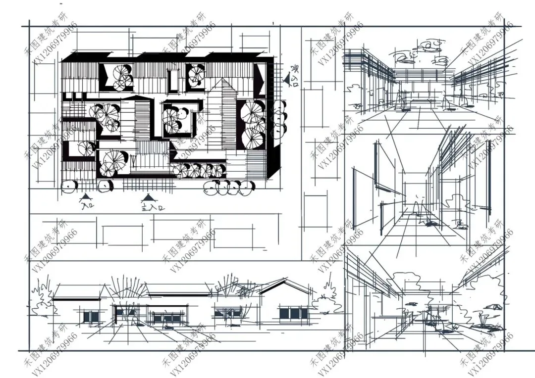
西溪蔡志忠美术馆

项目选址位于西溪湿地的南侧福堤附近,东临高庄 ,场地为一组合院,三面环溪,西侧为开阔广场与停车场。考察场地时,踱步环于合院,林木葱茂,建筑外貌被遮掩于树影之间,溪水蜿蜒,忽现几处孤岛,野柿树随意的垂于水面,不同于高庄江南古典园林的灵秀,颇有自然之野趣。


环抱于湿地自然之中,展馆应借西溪之景,融于环境成为更为开放的空间。因此,在根据现场条件与保持西溪传统建筑风貌的前提下,应运而生了两种不同的游览体验。



沿外部道路营造了一条半开放游廊,贴合建筑的边界,从西侧停车场开始,曲径通幽,既作为隔绝外界嘈杂的遮蔽,又是指引进入内部展馆的风雨廊和前序。



经过保留的折桥与门头,是室内展览的开始,足迹厅、笔迹厅、心迹厅三大展厅描绘了蔡志忠一生创作的精华。途径高庄一侧,便看到颇有野趣的园林场景。木构架雨廊的拓展压低了屋檐,拉伸了视线的宽幅并形成构景。


与古为新,和传统的展览建筑不同,设计力图找到一种松弛的表达,来找寻与蔡志忠漫画笔韵的对话。其线条笔墨的纯粹简洁印象深刻,这与园林的留白如画异曲同工。借由笔墨之意的灵感,在美术馆入口山墙设计了一条曲线,既为蔡志忠美术馆的符号,又成为游廊人流导向的指引。
















技术图纸




26寒假考研课程安排

26禾图全年课程计划



往期教学成果

教师课稿展示















































学员图纸改图示范展示









































禾图26寒假集训营课程优惠
禾图26寒假集训营共计15天,针对所有三小时建筑考研院校。
寒假集训课程共计15天
(150课时)
课程原价:2100元
11月10号前报名优惠后
1700元
11月30号前报名优惠后
1800元
12月31号前报名优惠后
1900元
集赞优惠
转发此公众号文章至朋友圈集赞10个或保存链接24小时即可在原优惠基础上再优惠100元
两人团报,每人优惠100元
三人及以上团报,每人优惠300元
优惠可叠加,具体优惠详情请咨询康康学长
(vx:hetusheji1206)
联系我们
7
课程咨询
HETU DESIGN

课程咨询


康康学长
微信号|hetusheji1206
禾图媒体·感谢关注






【禾图·一家致力于干货分享的学习平台】
========================设计教育领航者哔哩哔哩|小红书建筑考研学长禾图建筑手绘沈阳校区禾图设计网络学院
禾图建筑考研理论建筑考研交流qq总群
707715006